
Project "Schansstraat"
Schansstraat 60, 3580 Beringen
prijs op aanvraag
Project "Schansstraat"
Schansstraat 60, 3580 Beringen
prijs op aanvraag
Wonen in luxe: vier pittoreske woningen in een rustige wijk
Verlaagd btw-tarief 6%! (*vraag naar de wettelijke voorwaarden)
Ben je verzot op klassiek design, maar wil je wel graag een woning met de moderne luxe van vandaag? Aan de Schansstraat in Koersel ontwikkelt Idylia vier van zulke prachthuizen.
Dit project geniet van een exclusieve look in manoirstijl, waarbij de huizen in hun deels geschakelde positie de elegantie van een landhuis weerspiegelen. Toch geniet elke woning – mede dankzij de slimme indeling – ook van veel privacy, met onder andere een eigen oprit en eigen voor- en achtertuin.
Met wit en zwart in de hoofdrol kreeg dit project aan de buitenzijde een hedendaagse toets aangemeten. Accenten zoals muurankers, raamluiken en dakkapellen zorgen dan weer voor een traditionele look. Doordat de tuinen minimalistisch kunnen worden ingedeeld en de oprit steeds wat naar achteren verspringt, valt het oog vooral op de pure elegantie van de witte gevel.
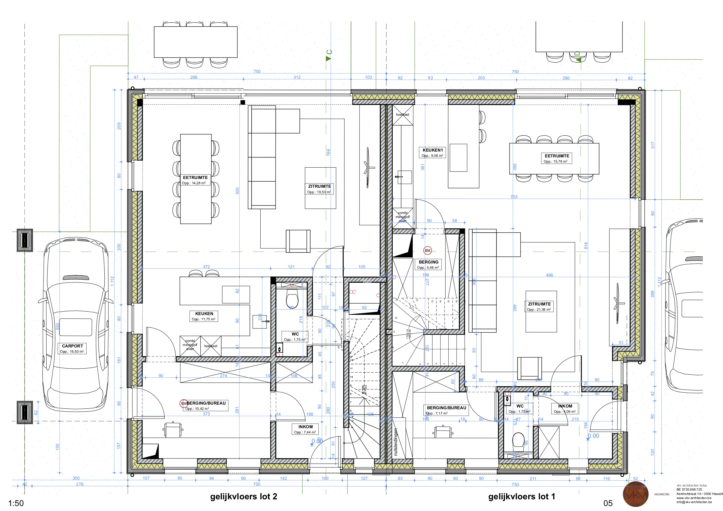
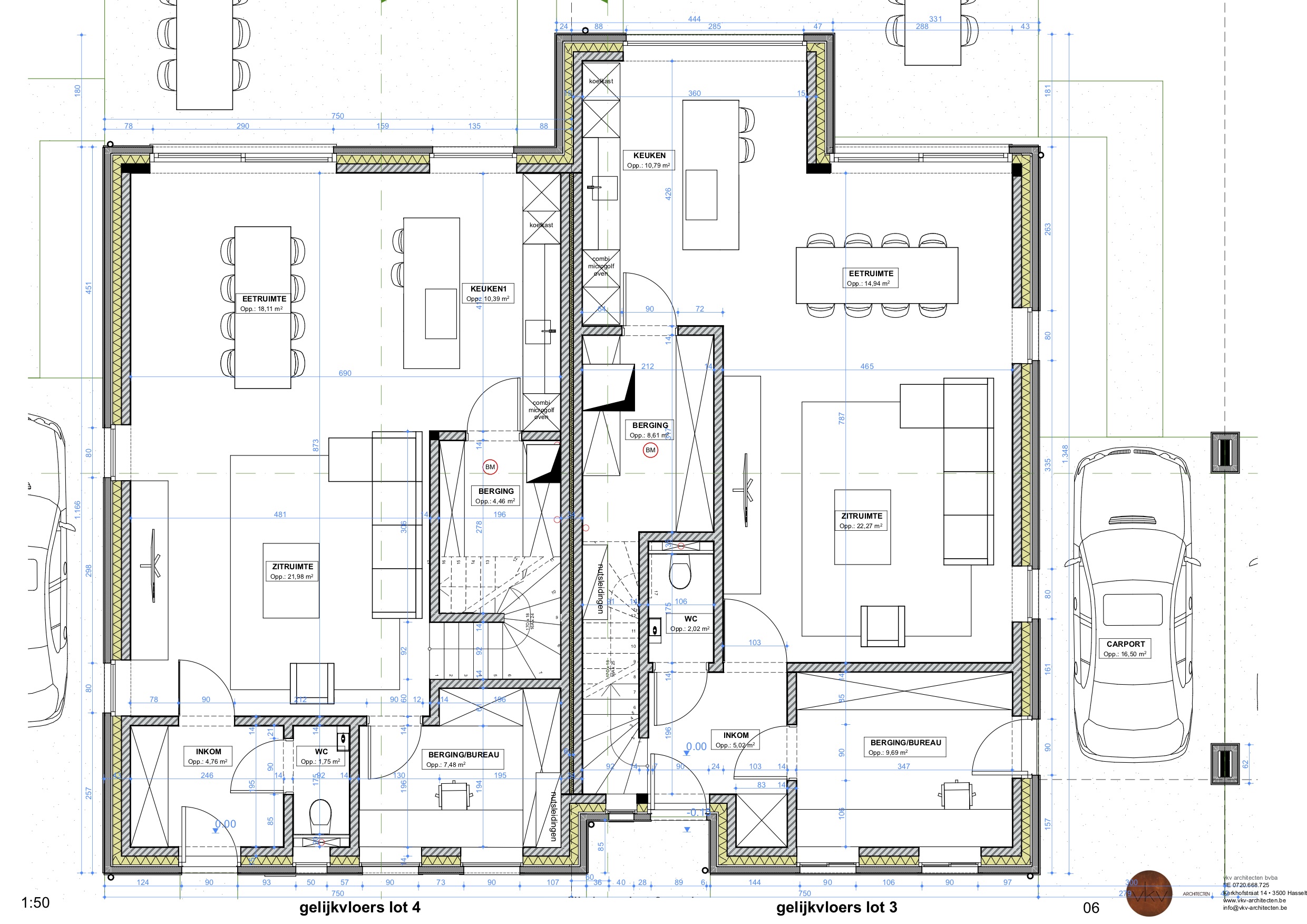
Royale leefruimte
Binnen wordt dat slimme ontwerp voortgezet met ruimtes waar licht en ruimte centraal staan. Door aan de straatzijde een ruimte te voorzien die als kantoor of extra berg- of slaapruimte kan worden gebruikt, ontstaan er aan de achterzijde een royale leefruimte en keuken van waaruit je een prachtig uitzicht hebt over de achtertuin.
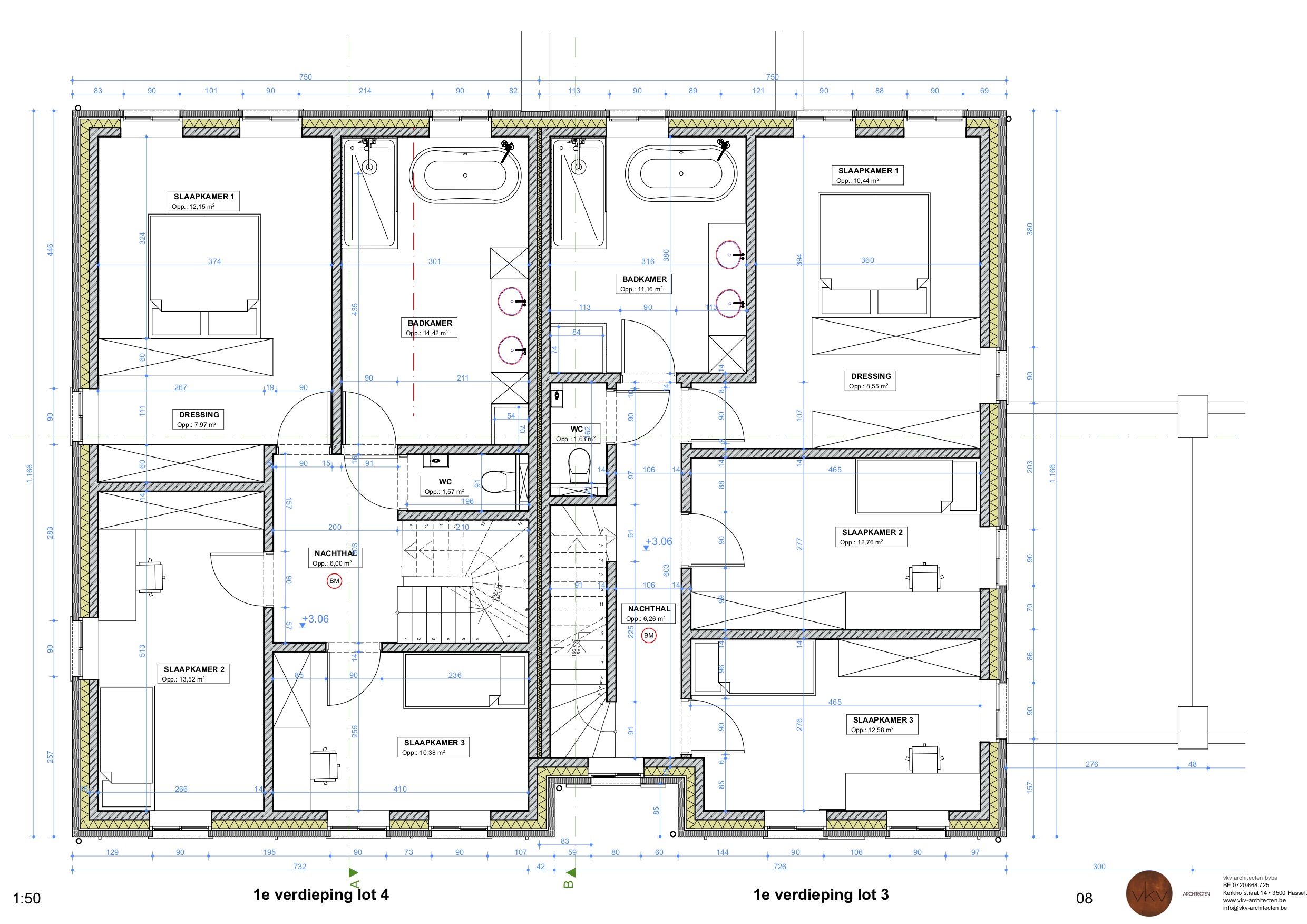
Ook vanop de bovenverdieping is dat mooie uitzicht aanwezig; zowel de grootste slaapkamer als de ruime gezinsbadkamer kijken uit op de tuin. Opbergruimte nodig voor een flinke garderobe? De masterbedroom beschikt over de luxe van een eigen dressing. En aan de voorzijde van deze verdieping liggen nog twee extra slaapkamers, elk mooi afgewerkt en van omvangrijk formaat.
Afwerking? Aan jou de keuze
Wie zijn woning graag van extra ruimte voorziet, kan ervoor kiezen om de zolder volledig afgewerkt te laten opleveren. Deze verdieping is immers uitgerust met een vaste trap én voldoende ramen, waardoor je hier gemakkelijk en comfortabel nog een extra slaapkamer, berging of recreatieruimte creëert.
Ben je ook al een beetje verliefd op deze woningen? Zie jij jouw droomhuis ertussen? Neem gerust contact met ons op voor meer informatie, we helpen je heel graag verder.
Ben je verzot op klassiek design, maar wil je wel graag een woning met de moderne luxe van vandaag? Aan de Schansstraat in Koersel ontwikkelt Idylia vier van zulke prachthuizen.
Dit project geniet van een exclusieve look in manoirstijl, waarbij de huizen in hun deels geschakelde positie de elegantie van een landhuis weerspiegelen. Toch geniet elke woning – mede dankzij de slimme indeling – ook van veel privacy, met onder andere een eigen oprit en eigen voor- en achtertuin.
Met wit en zwart in de hoofdrol kreeg dit project aan de buitenzijde een hedendaagse toets aangemeten. Accenten zoals muurankers, raamluiken en dakkapellen zorgen dan weer voor een traditionele look. Doordat de tuinen minimalistisch kunnen worden ingedeeld en de oprit steeds wat naar achteren verspringt, valt het oog vooral op de pure elegantie van de witte gevel.
Royale leefruimte
Binnen wordt dat slimme ontwerp voortgezet met ruimtes waar licht en ruimte centraal staan. Door aan de straatzijde een ruimte te voorzien die als kantoor of extra berg- of slaapruimte kan worden gebruikt, ontstaan er aan de achterzijde een royale leefruimte en keuken van waaruit je een prachtig uitzicht hebt over de achtertuin.
Ook vanop de bovenverdieping is dat mooie uitzicht aanwezig; zowel de grootste slaapkamer als de ruime gezinsbadkamer kijken uit op de tuin. Opbergruimte nodig voor een flinke garderobe? De masterbedroom beschikt over de luxe van een eigen dressing. En aan de voorzijde van deze verdieping liggen nog twee extra slaapkamers, elk mooi afgewerkt en van omvangrijk formaat.
Afwerking? Aan jou de keuze
Wie zijn woning graag van extra ruimte voorziet, kan ervoor kiezen om de zolder volledig afgewerkt te laten opleveren. Deze verdieping is immers uitgerust met een vaste trap én voldoende ramen, waardoor je hier gemakkelijk en comfortabel nog een extra slaapkamer, berging of recreatieruimte creëert.
Ben je ook al een beetje verliefd op deze woningen? Zie jij jouw droomhuis ertussen? Neem gerust contact met ons op voor meer informatie, we helpen je heel graag verder.
Beschikbaarheid
Overige panden |
||||
|---|---|---|---|---|
| Overige panden | Slpk. | Bew. opp. | Grond opp. | Prijs |
| Eengezinswoning – Schansstraat - lot 1 (6% btw!*) | 3 | 203 m² | 645 m² | verkocht |
| Eengezinswoning – Schansstraat - lot 2 (6% btw!*) | 3 | 204 m² | 525 m² | verkocht |
| Eengezinswoning – Schansstraat - lot 3 (6% btw!*) | 3 | 217 m² | 525 m² | verkocht |
| Eengezinswoning – Schansstraat - lot 4 (6% btw!*) | 3 | 203 m² | 471 m² | verkocht |